Bitte versuchen Sie, so viele Details wie möglich anzugeben.
Sind Sie an dieser Immobilie interessiert? Kontaktieren Sie stattdessen den Vermieter hier.
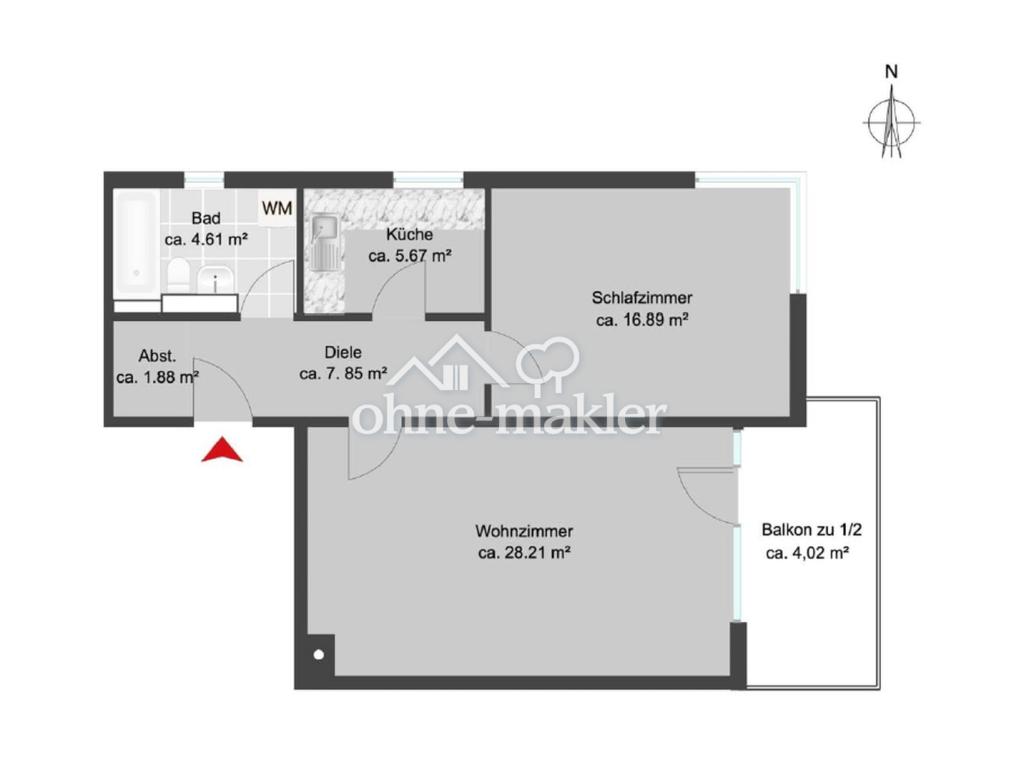
2 Schlafzimmer
-
Wohnung
70 m²
Kopiert